Appartamento con giardino
Tra Zocca e Montese, appartamento in borgo, immerso nel verde…
69,000€
In vendita
185,000€
ID Immobile :
RH-13500-property
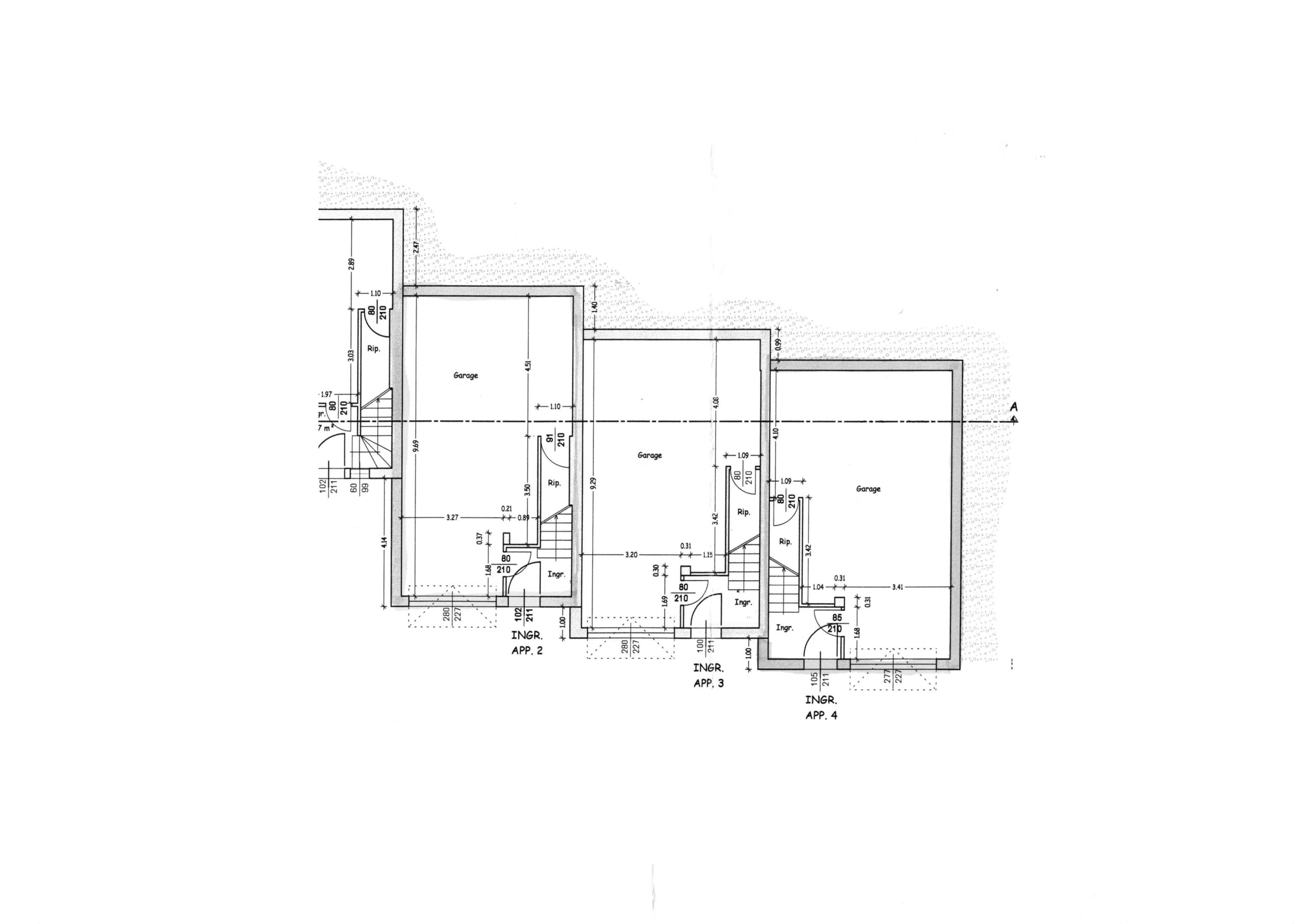
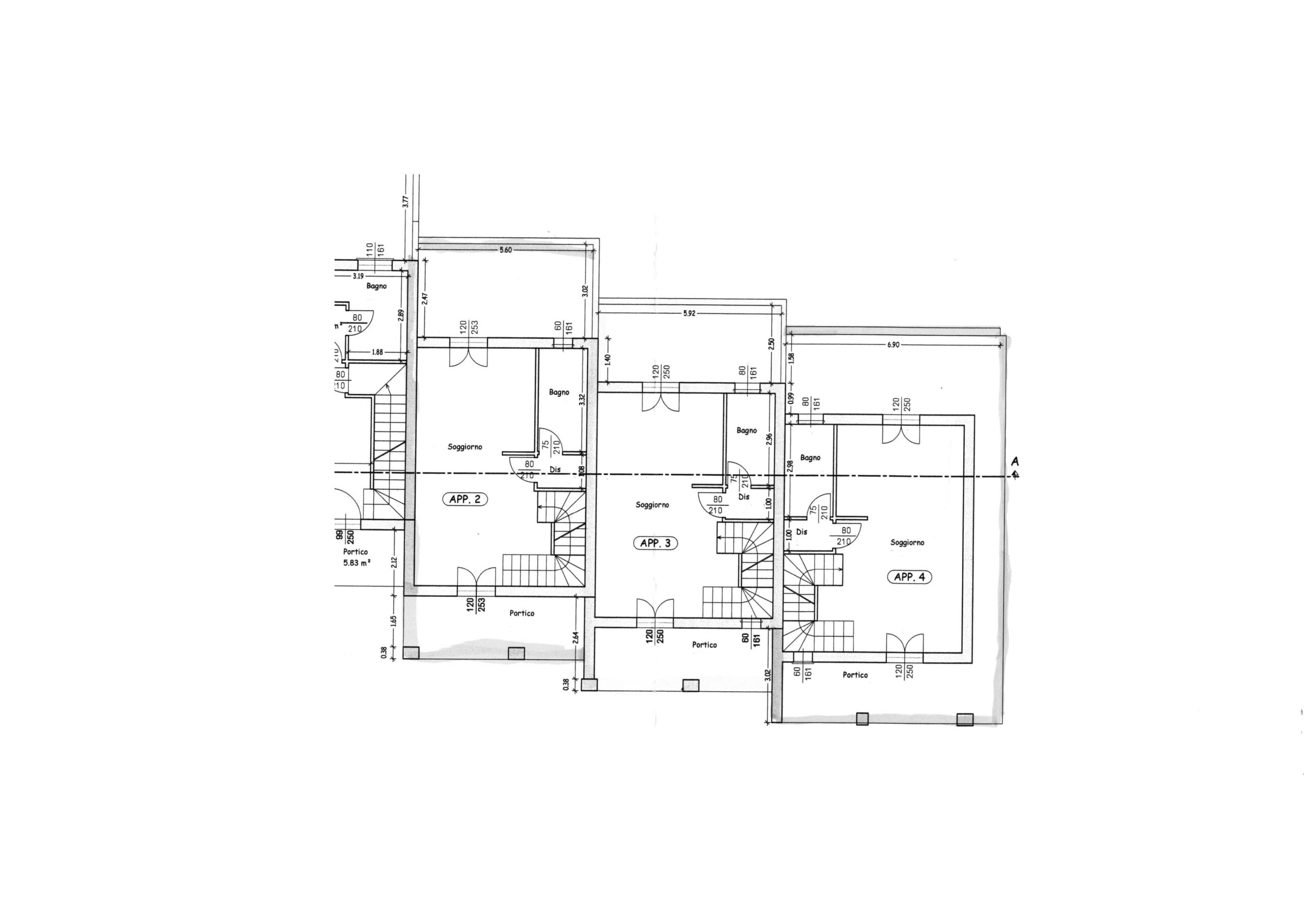
Nelle immediate vicinanze di Zocca, in una zona residenziale, panoramica e servita, proponiamo un’elegante villa a schiera di testa inserita in un contesto di sole quattro unità. L’abitazione si apre su un’ampia e luminosa zona giorno openspace, dove soggiorno e cucina si fondono in un ambiente luminoso e accogliente, un bagno con doccia garantisce la funzionalità. Una comoda scala conduce al piano superiore, dedicato alla zona notte, dove i soffitti con travi in legno a vista rendono accoglienti la camera padronale con terrazzo privato, ideale per goderti la vista panoramica, la seconda camera e il bagno con vasca per un confort ottimale. La proprietà include un giardino esclusivo e un’autorimessa di 45 mq, i cui ampi spazi consentono di ospitare comodamente più auto, attrezzature o di ricavare una funzionale tavernetta. L’immobile, mai abitato e in fase di ristrutturazione, offre la possibilità di acquistare anche l’unità adiacente (speculare). Una soluzione perfetta per nuclei familiari numerosi o per chi desidera vivere vicino ad amici e parenti mantenendo la propria indipendenza. (APE Richiesta)
Tra Zocca e Montese, appartamento in borgo, immerso nel verde…
69,000€
Castel D’Aiano vicinanze. Tra Castel D’Aiano e Zocca, in zona…
295,000€